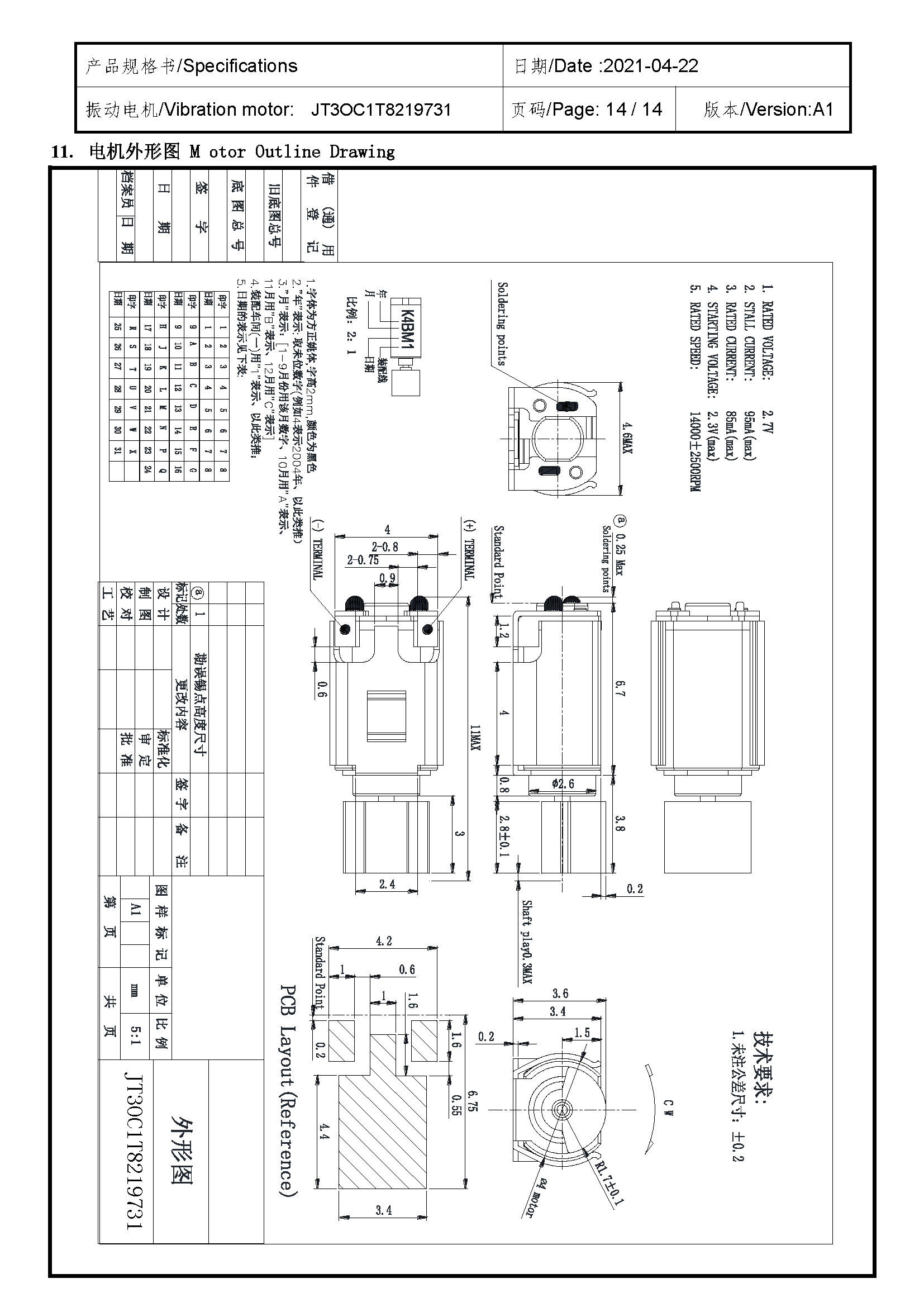
Product Overview:
Size:11.0×4.6×3.4 | Rated voltage:2.7V | Rated current:≤85MA | Rated speed:14000±2500 | Starting voltage:≤2.3V
Downloads
Product Description













