Product Overview:
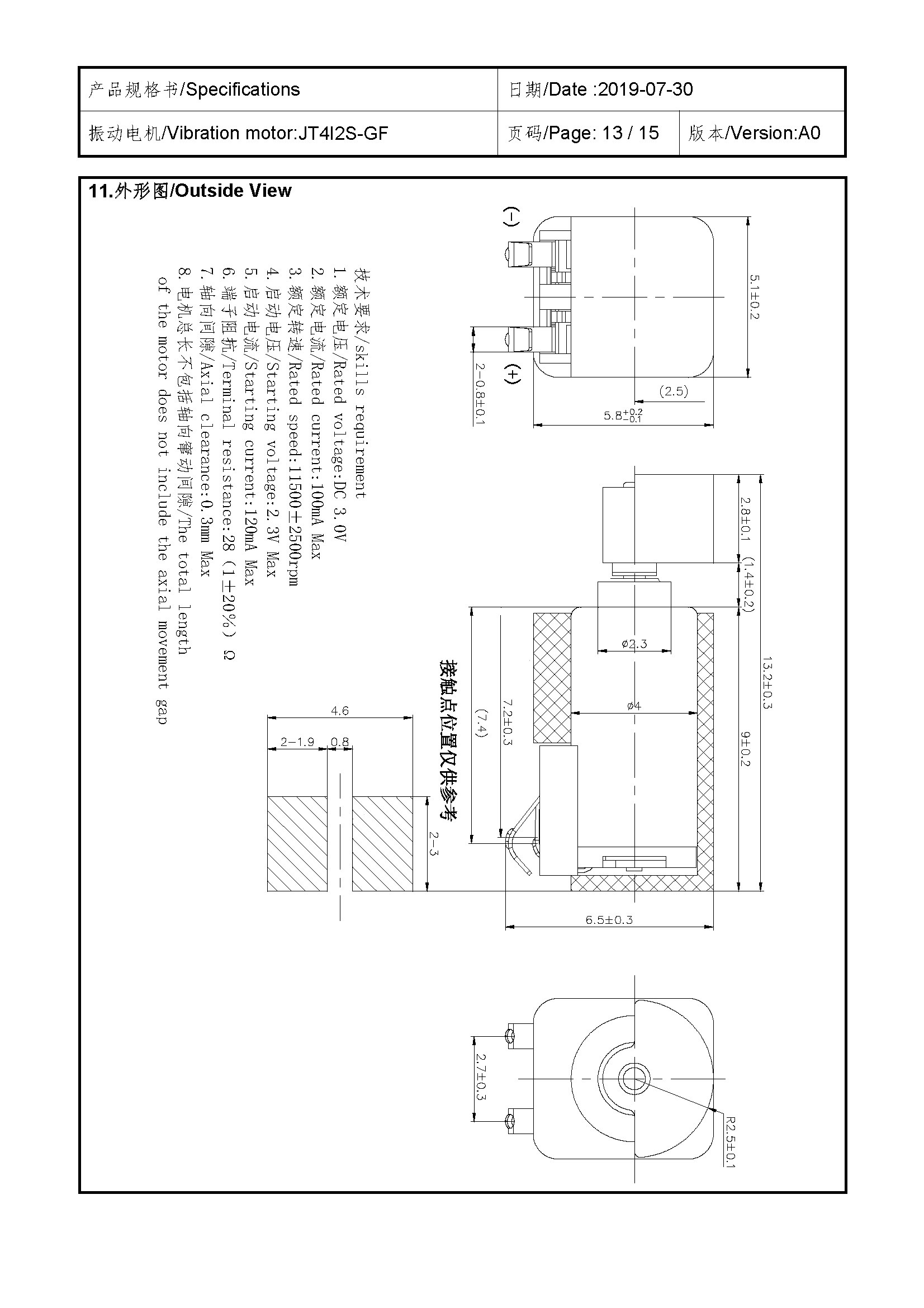
Size:13.2*5.1*5.8 | Rated voltage:3.0V | Rated current:≤100mA | Rated speed:11500±2500 | Starting voltage:≤2.3V
Downloads
Product Description














